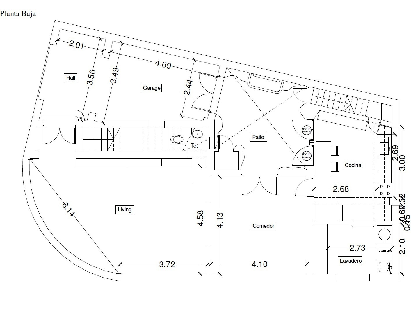
Fantástica casa de muy buena categoría y diseño (Arq. Martín Noel), de 70 años de antigüedad. Desarrollada en PB y 2 pisos. Seis ambientes, dependencias, patio, gran terraza con piscina, parrilla y SUM/quincho, cochera cubierta.
  • Ambientes: 5 ó más Ambientes
  • Superficie: 386 m2

CONSULTAR POR ESTA PROPIEDAD